– Προγραμματική σύμβαση μεταξύ Περιφέρειας Δυτικής Ελλάδας και Λιμενικού Ταμείου
Προγραμματική Σύμβαση για την υλοποίηση του έργου «Αναβάθμιση της Χερσαίας Ζώνης Λιμένα Κατακόλου» που αποτελεί μέρος της Ολοκληρωμένης Χωρικής Επένδυσης (ΟΧΕ) Κατακόλου – Πύργου – Αρχαίας Ολυμπίας,
υπέγραψαν σήμερα Τετάρτη 30 Οκτωβρίου 2018, στο Κατάκολο ο Περιφερειάρχης Δυτικής Ελλάδας Απόστολος Κατσιφάρας και ο πρόεδρος του Δημοτικού Λιμενικού Ταμείου Πύργου Λεωνίδας Βαρουξής.
«Με συνέργειες υλοποιούμε ένα ολοκληρωμένο, οραματικό πλάνο, που σχεδιάστηκε και υλοποιείται, με πόρους ήδη διασφαλισμένους. Με ένα πλαίσιο στοχευμένων παρεμβάσεων, σκοπεύουμε να αναδείξουμε συγκριτικά πλεονεκτήματα της Ηλείας που θα συμβάλλουν στη βελτίωση της ποιότητας ζωής, στην ευρύτερη ανάπτυξη της περιοχής και στην προστασία του περιβάλλοντος» επεσήμανε ο Περιφερειάρχης Δυτικής Ελλάδας Απόστολος Κατσιφάρας.
Προσθέτοντας ότι με την δέσμη έργων που προβλέπονται στην προγραμματική σύμβαση «το λιμάνι του Κατακόλου καθίσταται περισσότερο φιλόξενο, βελτιώνεται η λειτουργικότητα του και αναβαθμίζεται το επίπεδο υπηρεσιών προς τους εκατοντάδες χιλιάδες επιβάτες κρουαζιέρας που το επισκέπτονται κάθε χρόνο».
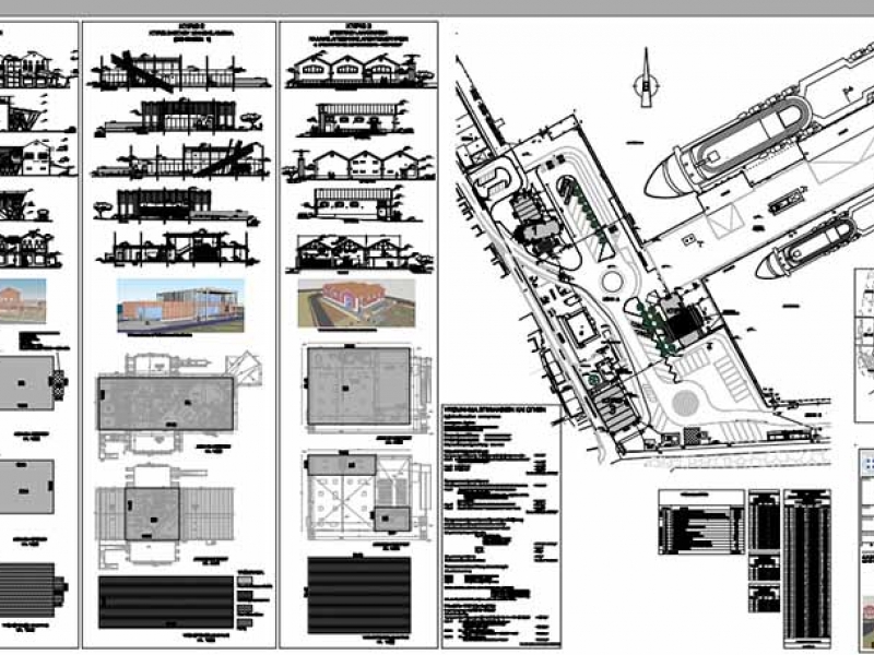
Ο συνολικός προϋπολογισμός για την υλοποίηση της Αναβάθμισης Χερσαίας Ζώνης Λιμένα Κατακόλου ανέρχεται στο ποσό των 10,5 εκ. ευρώ. Το έργο χρηματοδοτείται από το Επιχειρησιακό Πρόγραμμα «Δυτική Ελλάδα 2014-2020». Μετά την υπογραφή της Προγραμματικής Σύμβασης, ανοίγει ο δρόμος ώστε να ξεκινήσουν οι διαγωνιστικές διαδικασίες για την υλοποίηση του έργου. Στη χερσαία ζώνη του λιμένα θα κατασκευαστούν νέα κτίρια, τα οποία είναι:
α) Κτίριο υποδοχής επιβατών στη θέση του πρώην τουριστικού περιπτέρου, το οποίο αναπτύσσεται σε δύο στάθμες (ισόγειο και α΄ όροφος) με συνολική επιφάνεια 1310,07τμ.
β) Κτίριο Schengen με χρήση γραφείων ελέγχου επιβατών κρουαζιέρας και αποσκευών. Θα αποτελείται από το ισόγειο και τον α΄ όροφο, με συνολική επιφάνεια 774,25τμ.
γ) Κτίριο εκθέσεων –πολιτισμού. Πρόκειται για τις πρώην αποθήκες σταφίδας που θα μετατραπούν σε εκθεσιακό χώρο και θα συμπληρωθούν με την προσθήκη ενός όμοιου κτιρίου. Η συνολική επιφάνεια του εκθεσιακού χώρου θα είναι 785,99τμ.
δ) Ανάπλαση της χερσαίας ζώνης βάσει των κυκλοφοριακών ρυθμίσεων που περιγράφονται στην επικαιροποίηση του Γενικού Π.Σ. Λιμένα Κατακόλου. Περιλαμβάνει βιομηχανικά δάπεδα, ασφαλτοστρώσεις, διαμορφώσεις δρόμων ήπιας κυκλοφορίας, έργα πρασίνου και ηλεκτροφωτισμό.
Ποιοι παρευρέθηκαν
Στη διαδικασία υπογραφής της Προγραμματικής Σύμβασης παρευρέθηκαν ο Αντιπεριφερειάρχης ΠΕ Ηλείας Γιώργος Γεωργιόπουλος, ο Αντιπεριφερειάρχης Οικονομικών Παναγιώτης Μπράμος, ο Αντιπεριφερειάρχης Αγροτικής Ανάπτυξης Κωνσταντίνος Μητρόπουλος, ο βοηθός Περιφερειάρχη σε θέματα Ολυμπισμού, Εθελοντισμού και Αθλητισμού Δημήτρης Κωσταριάς, ο περιφερειακός σύμβουλος ΠΕ Ηλείας Παναγιώτης Πλατανιάς, η Προϊσταμένη του Τμήματος Δομών Περιβάλλοντος ΠΕ Ηλείας Κατερίνα Αρκουμάνη, ο Προϊστάμενος του Τμήματος Συγκοινωνιακών Έργων ΠΕ Ηλείας Νίκος Μπούλιαρης, ο Διευθυντής του Γραφείου Περιφερειάρχη Γιώργος Παπαδιαμαντόπουλος, ο ειδικός συνεργάτης ΠΔΕ Βαγγέλης Καραχάλιος και εκ μέρους της Διοίκησης του Δημοτικού Λιμενικού Ταμείου Πύργου, τα μέλη του ΔΣ Σάκης Αντωνόπουλος και Ζώης Υφαντής.







































